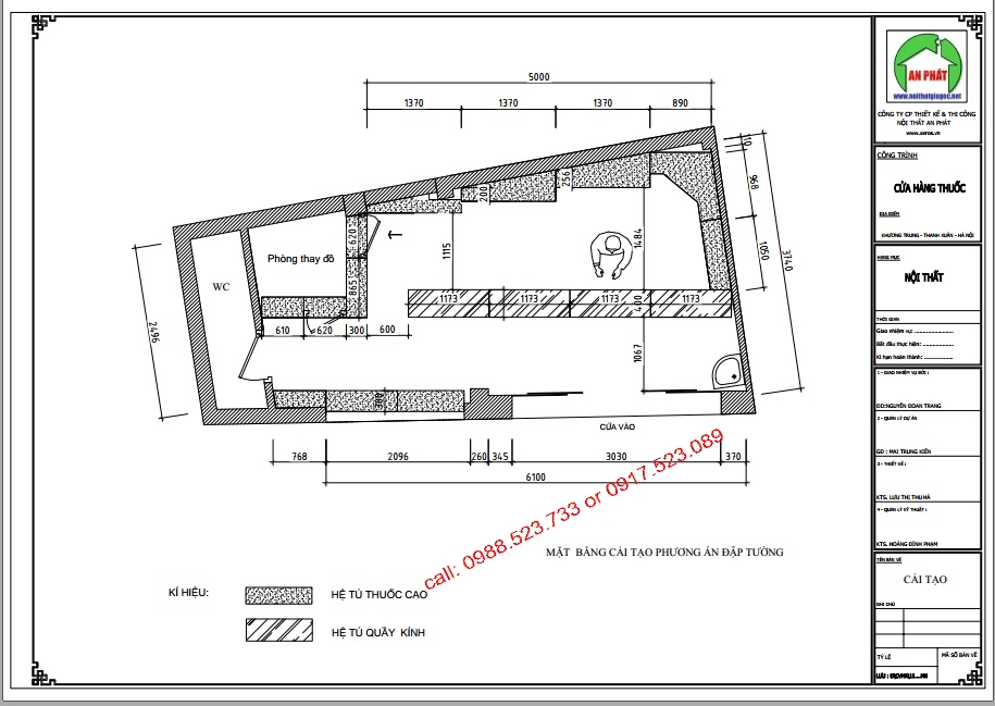
Thiết kế nhà thuốc